防音性能が高い部屋の見分け方|音が気になる人はRC一択!
静かな部屋を求めて、わざわざ高い契約金と家賃を払って住み始めたRC(鉄筋コンクリート)マンション。いざ住み始めてみると「全然防音性ないじゃん・・・」こんなことはザラにあります。
そんな悲しいことにならないよう、この記事を書きました。
また、もうすでに防音性が低いRC造のマンションにお住いの方にも読んでいただきたい記事となっております。
※RC=鉄筋コンクリート
RCなのになぜ防音性が低いのか
お部屋探しの時に色々とネットで調べると
・静かな部屋はRC造
・2重窓、サッシが重要
・角部屋を選ぼう!
等々の情報が溢れています。しかし上記の条件で部屋を選んでも、私の経験上「ホントにRC?」というほど騒がしいマンションもありました。よって、RC造りというだけで防音性の担保はとれないのです。
防音性が高い部屋の見つけ方
独立した部屋
突然ですがここでクイズです。
次の画像の部屋の並びで、どの部屋が防音性が高い部屋でしょうか。

正解は赤枠で囲った部屋です↓

簡単ですね。
まれにこういった独立した部屋が存在します。
このような配置であれば、よほど音を出さないと隣人には聞こえませんし
聞こえてきません。
隣の部屋と接している壁が全くなく、共用部を挟んでいるため音が伝わりにくくなっています。
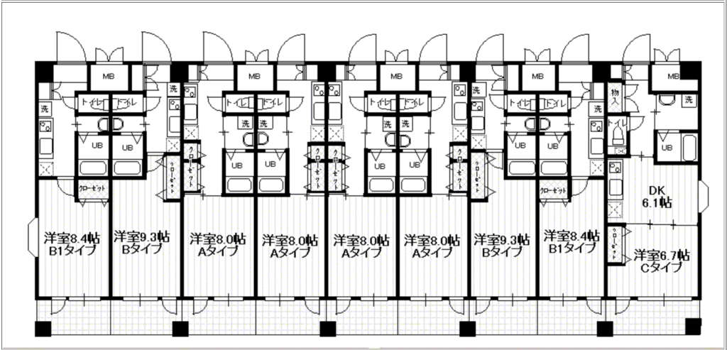
では、次の並びで防音性が高い部屋はどこでしょうか。
戸境壁をチェック

こちらは一番右の部屋が防音性の高い部屋となります。
一体なぜでしょうか。
以下の赤で囲った場所にご注目ください。

赤で囲ったものが「鉄筋の柱」とお考え下さい。
その鉄筋の柱を結んだ線が防音性の高い壁、コンクリ壁です。
つまり、

少し見づらいですが、赤太線の壁のみ防音性が高い壁(コンクリ壁)となっています。
一番右の部屋以外は左右どちらかの壁は石膏ボード等で作られた薄い壁です。
また、部屋と部屋を区切る壁を「戸境壁」といいます。
RC造りのマンションの1K及び1DKは建築コストを下げるためや
後々間取りを変更できるよう、
「1つの部屋を石膏ボードのような薄い壁で2つに分割」しています。
その関係で戸境壁の一方が薄い壁、もう片方がコンクリ壁となってしまっているのです。
よって、一番右の部屋以外は全て隣からの音が聞こえます。
ということは先ほどの画像のようにフロアの部屋数が奇数のマンションの場合、両壁がコンクリ壁の部屋がフロアに一部屋だけ存在することになります。そこを積極的に狙っていきましょう。
しかし、以下の画像のように間取り図で「鉄筋の柱」がどこにあるかわからない場合があります。

そこで、「鉄筋の柱」及び「防音性が高い壁」を外から見分ける方法をお伝えします。
外見から造りを見破る方法

こちらは全て1Kもしくは1DKのマンションです。

鉄筋が入っているのはここです。
ということは「防音性の高い部屋」は、

この赤い部分が防音性の高い部屋ですね。
この部分の間取り図はこちら

しっかりと両壁に鉄筋が入っています。
そのほかの部屋(赤枠の部屋以外の部屋)の間取り図はこちら

片側だけコンクリ壁です。こちらの部屋はクローゼットがある方の壁が薄い造りです。
どちらの部屋も実際に内見を行い、壁を確認しました。
壁を叩いて確認したところ、1枚目の部屋は両壁ともにコンクリ壁で、2枚目の部屋は片方だけコンクリ壁でございました。
内覧でできる簡単な戸境壁チェック
壁をノック:ボンボンと響くような音なら薄い壁の可能性高。コツコツと手が痛くなるような硬い壁ならコンクリ壁。
大事なことなのでもう一度書きます。
基本的に1K及び1DKは建築コストを下げるため
「1つの部屋を石膏ボードのような薄い壁で2つに分割」しています。
その関係で防音性が低い部屋が多く存在しています。
※1LDKはまた別の記事にて
マンションノート等の口コミサイトで同じマンションにもかかわらず、
Aさんは「非常に音が聞こえる」に対し
Bさんは「防音性が高く、静かに過ごせました」
のような真逆の口コミが書かれる場合があります。
これは上記の理由が原因です。
注意点
・賃貸サイトの間取り図が誤っていることがある(左右反転や壁仕様の誤表記)。
・仲介スタッフでも「戸境壁」という言葉や意味を知らない人がいる。「壁を叩いても防音性はわからないですよー」と意味の分からないことをいう人もいる。説明が曖昧なら、自分の目と耳で確かめる。スタッフの言うことを鵜吞みにしない。
どうしても内見できない場合は、壁仕様(戸境壁の材・厚み)や住戸の並びを書面で確認し、言質を残す。
まとめ|防音性は部屋の並びと戸境壁で見極める
ポイント
・独立した部屋
・戸境壁がコンクリ壁の物件
・外見と間取りと体で確認する。
音に敏感な人や在宅ワーク中心の人にとって、防音性は「家賃」以上に大切な条件となりますので妥協せず物件探しを進めていきましょう。


コメント